Call Us Free 24/7 : 800-422-1360

Features:
| Technical Specs: | |
| Material | Solid Brass |
| Finish | Oil Rubbed Bronze |
| Style | Contemporary Rain Shower head |
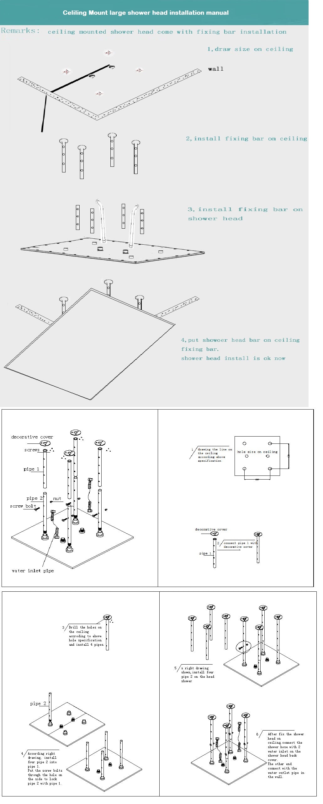
| Shower Arm | Included |
| Showerhead Width | Available in 20" * 40" |
| Showerhead Length | Available in 20" * 40" |
| LED Power Source | Water Flow |
| LED Color | Available without color changing or with LED colors Blue, Green, Red |
| Showerhead Style | Contemporary Rain Shower |
| Mount Method | 4 Ceiling mount arms included |
| Connection | 1/2" US standard (included) |
| Body Jets | Comes with solid brass 360° adjustable Body Jets finished in Oil Rubbed Bronze. Body Jets size 5" x 5" |